Τα παλιά σπίτια της Αθήνας διηγούνται την ιστορία τους κι αν τα διαλέξουν άνθρωποι που μπορούν να την «ακούσουν», απλά τη συνεχίζουν…
μελέτη Μαρία Μπουρδάκη, Αρχιτέκτονας
επίβλεψη-διαχείριση έργου Γιώργος Μουσίκας, Πολιτικός Μηχανικός
κατασκευή Εφαρμογή Ο.Ε.






photoGALLERY

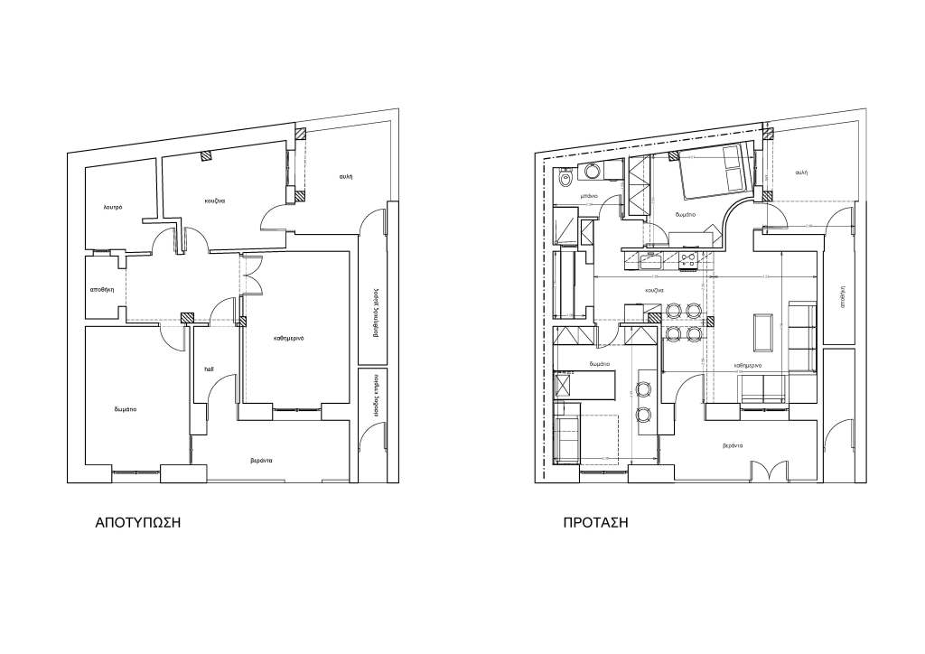
η κατοικία πριν τις εργασίες ανακαίνισης (photoGALLERY)





















































Σχολιάστε